増築して浴室を新設し、キッチンは対面式に 大垣市青墓町Y様邸
|
施工事例データ
| 住所 | 岐阜県大垣市青墓町 |
|---|---|
| 施工箇所 | キッチン、浴室、洗面・洗濯室 |
| 施工内容 | キッチンリフォーム、増築して浴室新設、洗面・洗濯室移設 |
| 費用 | 約270万円 |
| 工期 | 約30日間 |
| 使用商材 | LIXIL「アライズ」、LIXIL「シエラ」 |
施工前はこちら
この場所に増築し、浴室と洗面・洗濯室を作ります。
流し台は老朽化していました。
この下り壁の下に対面式キッチンを設置します。
Y様との出会い

お勤めの会社の社長さんに紹介していただきました。
Y様のリフォームについてのお悩み
お風呂がなくて不便でした。流し台は老朽化していました。
大垣設備からのご提案
増築して浴室と洗面・洗濯室を作るよう提案しました。
キッチンは大垣設備ショールームの展示品を特別価格でご提供し、対面式に変更するよう提案しました。
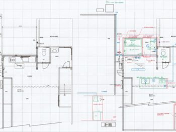
| 設計図を作りました。 |
![]() |
| 工程表を提示しました。 |
![]() |
大垣設備による施工中の様子
コンクリートブロックを並べ基礎にします。
青い管は給水管、赤い管は給湯管、グレーの管は配水管です。
増築部分の骨組みを組み立てました。
天井を張りました。
増築部(浴室)の外壁を作っています。
洗面・洗濯室の床を作っています。
洗面・洗濯室の床を張り、壁には断熱材を入れました。
増築部にシステムバスルームを組み立てました。
浴室、洗面・洗濯室のキッチン側の壁の骨組みを作っています。
増築部に壁を張りました。窓はインプラスを用い二重窓にしました。
浴室、洗面・洗濯室のキッチン側の壁のクロスを貼る下地を作りました。
玄関部分の壁を作っています。
対面式キッチン設置場所の造作壁を製作していきます。
造作壁の裏側です。
クロスを貼る下地を作りました。
施工が完了しました
対面式のLIXILシステムキッチン「シエラ」を設置しました。堂々としたたたずまいです。
システムキッチンの背面側です。レンジフードを造作壁に設置しました。
LIXILシステムバスルーム「アライズ」1坪サイズ(1616タイプ)が完成しました。
洗面化粧台は既設のものを移設しました。隣に洗濯機パンを設置しました。
玄関部分を造作壁で取り囲みました。
増築部分の外壁・窓が完成しました。
リフォームされたお客様の声
工事が完成してみて、いかがでしたか?(工事中にお気付きのことでもけっこうです。)お客様の暮らしはどう変わりましたか?」とお尋ねしたところ、つぎのようにご回答されました。
こちらの要望に親身になって相談に乗っていただき、形にしてくださった黒田さんと職人さんに感謝。
リフォーム担当者の声
Y様がお勤めの会社の社長様からは、これまで数多くの工事をご用命いただいております。
今回は、社長様からY様に大垣設備をお薦めいただきました。まことにありがたく存じます。
ちょうどショールーム展示品のシステムキッチンを入れ替える時期だったので、お値打ち価格でご提供いたしました。
すてきなキッチンとお風呂をどうぞお楽しみください。













